資料請求・お問い合せ
よくある質問
サイトマップ
採用情報
初めての方へ
サービス一覧
買う
売る
借りる
移設する
商品を探す
導入事例
会社案内
HOME
>
お知らせ
> zumen
2026/4/15
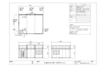
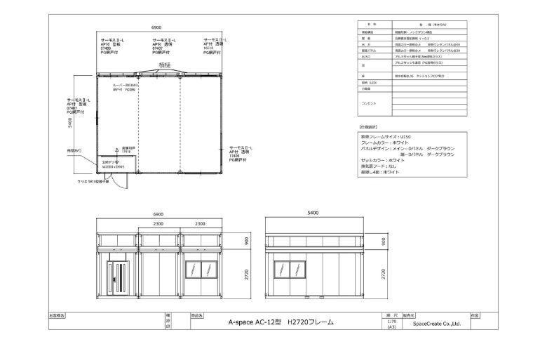
zumen
用途別で探す
事務所・休憩室
倉庫・物置
トイレ
その他
シリーズ別で探す
A-space
K-space
C-space
サイト内検索
検索
お問い合せはお電話、またはお問い合せフォームから受付しております。
サービス一覧
プレハブの搬入作業費
よくある質問
プライバシーポリシー
サイトマップ
Copyright(c)2016 SpaceCreate.