A-space チョイス型オリジナルユニットハウス
物件情報
2026.1.21 アウトレットユニットハウス6.3坪(12.6畳)タイプB級品を、ヨガ・ピラティス教室として設置しました。
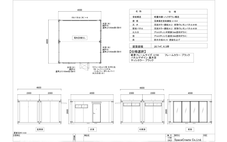
和歌山県橋本市のK様に、A-space AC-6型B級品(12.6畳)をヨガ・ピラティス教室として採用していただきました。
”設置場所は広いが進入経路が狭いので、設置可能か調査して欲しい”と、ご相談いただきました。
懸念されていたとおり、侵入経路は非常に狭く木枝が道を遮るため、辛うじて4tユニック車が通行出来る程度でした。
ハウスを傷付けないように枝を伐採していただき、誘導員を配置しながらであれば搬入が可能と判断し、ご希望の間取りをお打ち合わせしました。
自宅の景観を損ねないシックなデザインと、背面に大きなFIXパネルを装備したこだわりのユニットハウスになっています。
電気・内装・外構工事はお客様にお手配いただきました。
ユニットハウスの搬入・設置方法は多様です。
設置できるか不安な場合は、事前に現地調査いたしますのでお気軽にご相談ください。
※価格情報は設置当時の価格です。






事務所・休憩室
倉庫・物置
トイレ
その他
2坪まで
4坪まで
8坪まで
8坪以上
20万円まで
40万円まで
60万円まで
100万円まで
100万円以上

















