A-space チョイス型オリジナルユニットハウス
物件情報
2025.9.12 アウトレットユニットハウス8.8坪(17.6畳)タイプを、事務所として設置しました。
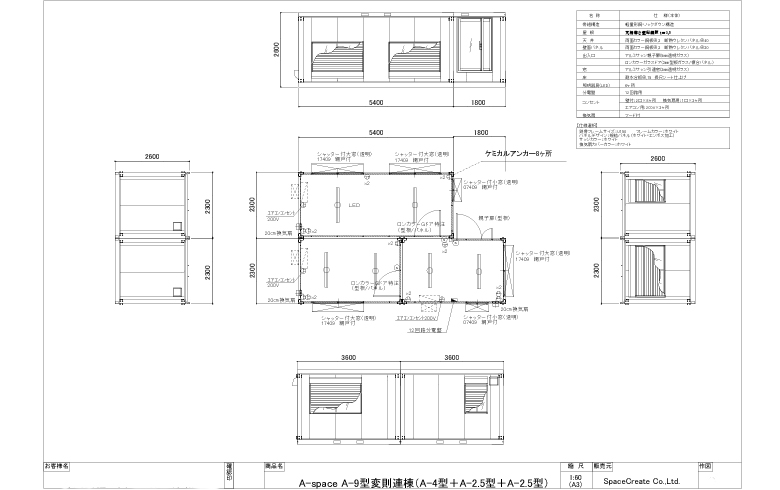
大阪府岸和田市のS社に、A-space A-9型(17.6畳)を事務所として採用していただきました。
”3階建て店舗の屋上にユニットハウスを設置できないか”とご相談いただきました。
ユニック車では設置できない高所であったため、クレーン車での設置になりました。
屋上の形状により一般的な連結方法のユニットハウスだと小さすぎることから、2種類のサイズが異なるユニットハウスを3棟連結させる「変則連棟型」を採用し、屋上の限られたスペ―スを最大限に活用できました。
クレーン車・電源引込工事はお客様にお手配いただきました。
※価格情報は設置当時の価格です。






事務所・休憩室
倉庫・物置
トイレ
その他
2坪まで
4坪まで
8坪まで
8坪以上
20万円まで
40万円まで
60万円まで
100万円まで
100万円以上

















