A-space チョイス型オリジナルユニットハウス
物件情報
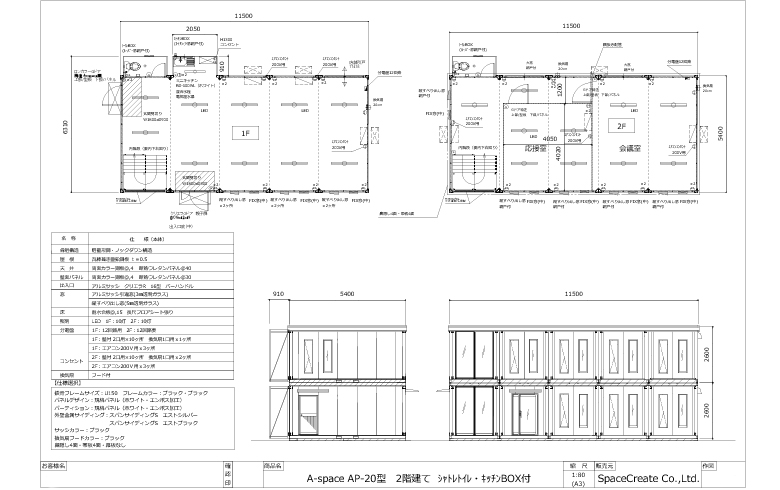
2025.10.17 アウトレットユニットハウス18.1坪(37.6畳)タイプ2階建を、事務所・応接室・会議室として設置しました。
京都府亀岡市のC社に、A-space AP-20型(37.6畳)2階建を事務所・応接室・会議室として採用していただきました。
“建屋内にある既存の事務所が手狭になっている”とご相談いただきました。
従業員の事務所・休憩室・会議室・食堂や来客スペースなどが、建屋内にバラバラに配置されており使い勝手も悪いとのことでした。
事務所・応接室・会議室は2階建ハウス内に配置し、食堂棟は別棟で設置することでご提案しました。
設備工事や備品の搬入後に新しい環境をご利用いただけることを心より楽しみにしております。
※価格情報は設置当時の価格です。






事務所・休憩室
倉庫・物置
トイレ
その他
2坪まで
4坪まで
8坪まで
8坪以上
20万円まで
40万円まで
60万円まで
100万円まで
100万円以上

















